/* Template Name: 事業用 */ ?>

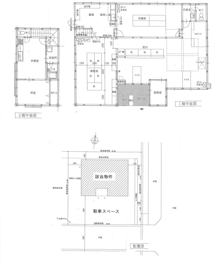
| 所在地 | 秋田県横手市赤坂字館ノ下 地内 |
|---|---|
| 建物面積 | 建物 : 1階142.43㎡ 2階37.26㎡ 合計179.69㎡(54.36坪) |
| 価格 |
¥4,500,000円(税別) |
| 周辺交通 | 横手駅西口迄2000m・横手IC迄1100m |
| 設備・その他 | 水道/公営 排水/公共下水 電気/東北電力※ ガス/プロパンガス |
| 構造 | 木造亜鉛メッキ鋼板葺2階建 |
| 用途地域他 | 第一種中高層住居専用地域 法第22条区域 |
| 建ペイ率・容積率 | 60% ・ 200% |
| 接道 | 底地:土地賃貸借 499.37㎡(151.06坪) 間口(南側):約22m 南側道路(幅員8m) |
| 備 考 | H19年2月改修工事 店舗→事務所 付帯駐車場有(事務所前面) 仲介手数料金195000円(税別)がかかります。 |

| 所在地 | 秋田県横手市条里三丁目 地内 |
|---|---|
| 土地・建物面積 | 土地 宅地1142㎡(345.46坪)・ 建物 店舗・居宅 1~2階443.44㎡(134.14坪) S44/9新築 附属建物 車庫 1階58.32㎡(17.64坪) S62/10新築 |
| 価格 |
¥31,000,000円(税含む) |
| 周辺交通 | 横手駅西口迄m・横手IC迄m |
| 設備・その他 | 水道/上水道 排水/公共下水 電気/東北電力※ ガス/プロパンガス |
| 構造 | 店舗・居宅(鉄骨・木骨造2階建て) ・附属建物 車庫 (鉄骨造平屋建て) |
| 用途地域他 | 準工業地域 法第22条区域 |
| 容積率・建ペイ率 | 200% ・ 60% |
| 接道 | 国道13号線沿線 道路幅員(東):28m 接道の長さ:約28.5m |
| 備 考 | 事務所・店舗用途等 |
| 土地面積 | 139.38坪 |
|---|---|
| 所在地 | 横手市条里三丁目 地内 |
| 使用目的 | 駐車場・テナント・事務所 用地 他 |
| 条 件 | 賃料70,000-/月
敷金:要相談(※建築面積による)/礼金:賃料×1カ月 仲介手数料賃料一カ月分×消費税がかかります。 |
| 周辺交通 | 横手駅西口迄1100m |
| 設備・その他 | 上水道有 下水マス設置済み |
| 敷地概要 | |
| おすすめポイント | 角地 |

| 面 積 | 102.98㎡(31.15坪) |
|---|---|
| 所在地 | 大仙市大曲須和町1丁目 地内 |
| 建ぺい率 | 60% |
| 容積率 | 200% |
| 価 格 | 2,000,000-円(¥64、205-/坪) |
| 周辺交通 | JR大曲駅徒歩19分1.5Km |
| 設備・その他 | |
| 敷地概要 | 地目:宅地 前面道路幅員(南側)12m (北側)4m (東側) m 間口 (東側) m (南側) m (北側) m |
| その他 | 用途地域:第2種中高層住居専用地域 準防火 |
| おすすめポイント | 駐車場用地などにいかがでしょうか! |

| 面 積 | 494.06㎡(149.45坪) |
|---|---|
| 所在地 | 横手市田中町 地内 |
| 建ぺい率 | 80% |
| 容積率 | 400% |
| 価 格 | 11,250,000-円(¥75、000-/坪) |
| 周辺交通 | JR横手駅迄700m/横手市役所本庁舎前バス停(羽後)150m |
| 設備・その他 | 上・下水道有 ※賃貸中 |
| 敷地概要 | 地目:宅地 前面道路幅員 6メートル 間口 16.8メートル |
| その他 | 用途地域:商業地域 準防火地域 |
| おすすめポイント | 最寄りのコンビニ迄52m・スーパー迄500m・市立横手病院迄850m・横手南小学校迄550m・横手南中学校迄3100m |

| 土地 / 建物 面積 | 2933.32㎡(887.33坪) /自宅227.58㎡(83.97坪)+車庫+物置+借家4棟 |
|---|---|
| 間取り/築年月日 | |
| 建ぺい率 | 60% |
| 容積率 | 200% |
| 価 格 | 48,000,000-円 |
| 周辺交通 | 横手駅東口迄1600m 旭川二丁目バス停150m |
| 設 備 | |
| その他 | 用途地域:第1種住居地域 現状渡し 学区:南小迄1300m 南中迄4000m 横手清陵学院迄650m |
| おすすめポイント | 角地 |

